Register Saved Properties |
 
21

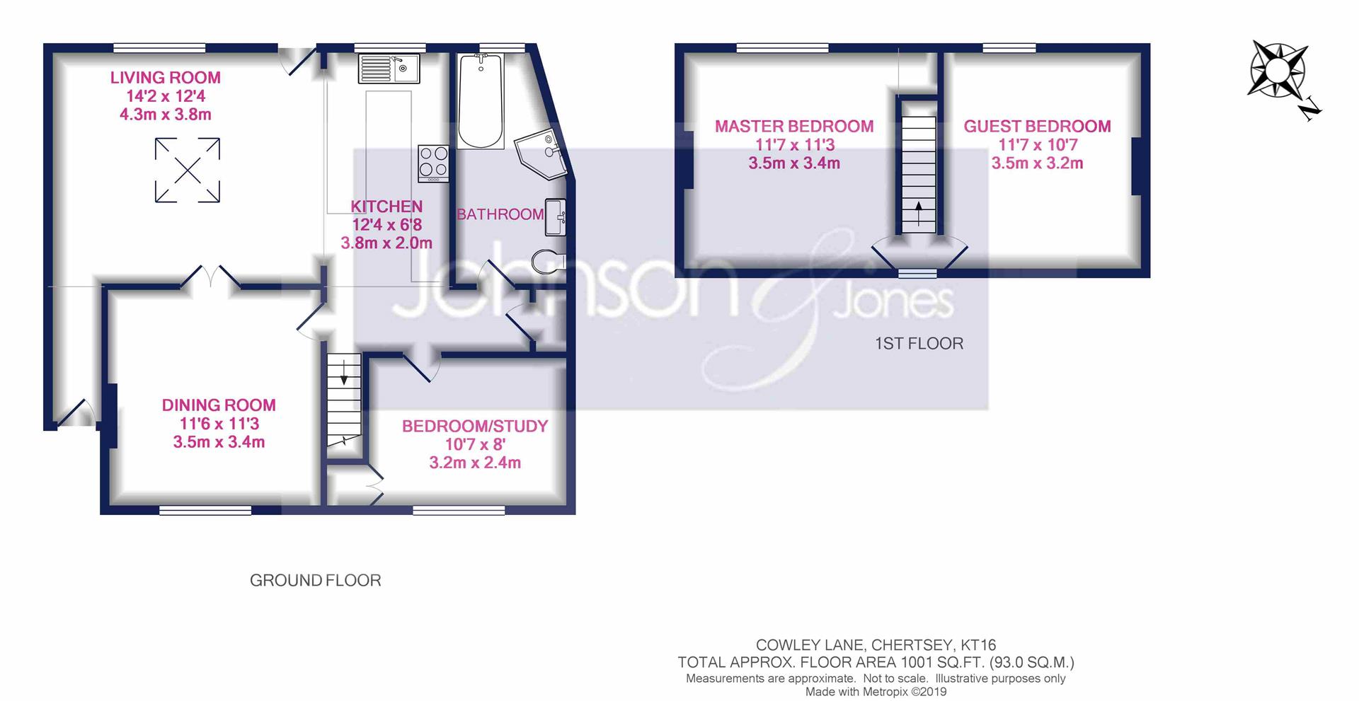
Cowley Lane, Chertsey, KT16

£2,150 Fees Info
3 bedrooms, 1 bathrooms, 2 receptions

Summary:


Having been lovingly remodeled by the current owner this is not the typical property that you would see on the rental market. With the standard set way above its competition, this unique gem of a property certainly will need to be seen to be appreciated. Hidden away at the end of a private back road, yet still, within just a short walk to the town center and railway station, the position is certainly favorable. Entering the property the level of finish is immediately apparent. Boasting a spacious entrance hall which leads through to a large open plan living space with a huge roof lantern basking the area in light. The kitchen is certainly a statement in the home with a large breakfast bar, an abundance of storage, integrated dishwasher and a beautiful range cooker! The dining room is separated by french doors allowing the flexibility of open plan or seclusion. Featuring striped wooden floorboards and a feature fireplace making it a very attractive entertaining space. All three of the bedrooms are comfortable double rooms. Master and second located on the first floor with the third located on the ground making it adaptable if to be used as a home office. The bathroom has certainly had no expense spared with captivating tiling, a huge walk-in shower, and a deep bathtub for relaxing at the end of a long week. Externally the property continues to impress with a delightful garden. With many secluded seating areas you would be forgiven for believing you were in the countryside. There is an enclosed driveway for parking and a detached double garage with power and lighting. With so many defining characteristics, this stunning property certainly creates a lifestyle many would desire.Available - Saturday 22nd NovemberDeposit - £2,480Council Tax - Band D - £2,380.06EPC - D Rating - 62


Key Features:

  • Detached Double Garage/Workshop
  • Brand New Captivating Bathroom
  • Three Spacious Double Bedrooms
  • Beautiful Enclosed Rear Garden
  • Statement Fitted Kitchen
  • Gas Central Heating


Full Details:





Viewing & Disclaimer:


Please contact us on 01932 560777 if you wish to arrange a viewing appointment for this property, or require further information.

Johnson and Jones endeavour to maintain accurate depictions of properties in Virtual Tours, Floor Plans and descriptions, however, these are intended only as a guide and purchasers must satisfy themselves by personal inspection.

 


IE8 Alert! Cookie Alert!

To get the best possible experience using our website we recommend you upgrade to a modern web browser. More info