12
Summary:
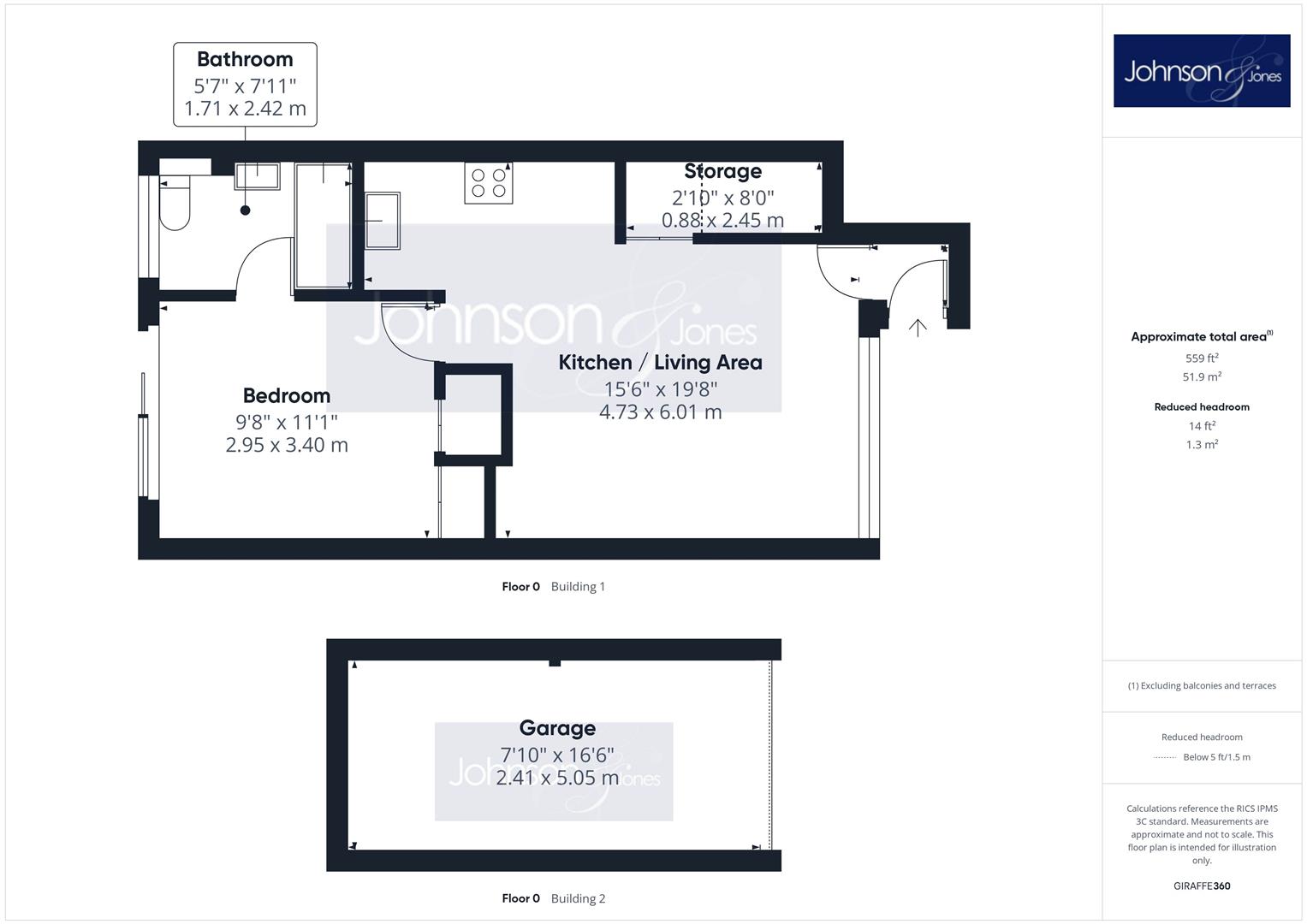
This charming ground floor maisonette is located on Windsor Place and nestled within the heart of Chertsey offering a perfect blend of comfort and convenience.Upon entering, you will find a welcoming open plan reception room that provides a bright and spacious living area. The property boasts a well-appointed bedroom which boasts built in wardrobes and an en-suite bathroom which is fitted with a white three piece suite.One of the standout features of this maisonette is the private rear garden, a lovely outdoor space where you can enjoy fresh air and sunshine, perfect for unwinding after a busy day. Additionally, the property includes a garage, offering extra storage options.Situated close to the town centre, this location provides easy access to a variety of local amenities, including shops, restaurants, and transport links, making daily life both convenient and enjoyable. Do not miss the chance to make this lovely maisonette your new home!Available - ImmediatelyDeposit - £1,500Council Tax - £2,216.00EPC - D Rating - 67
Full Details:
Viewing & Disclaimer:
Please contact us on 01932 560777 if you wish to arrange a viewing appointment for this property, or require further information.
Johnson and Jones endeavour to maintain accurate depictions of properties in Virtual Tours, Floor Plans and descriptions, however, these are intended only as a guide and purchasers must satisfy themselves by personal inspection.
