24
Cartwright Drive, Chertsey, KT16
Guide price £625,000
4 bedrooms, 2 bathrooms, 1 receptions
Summary:
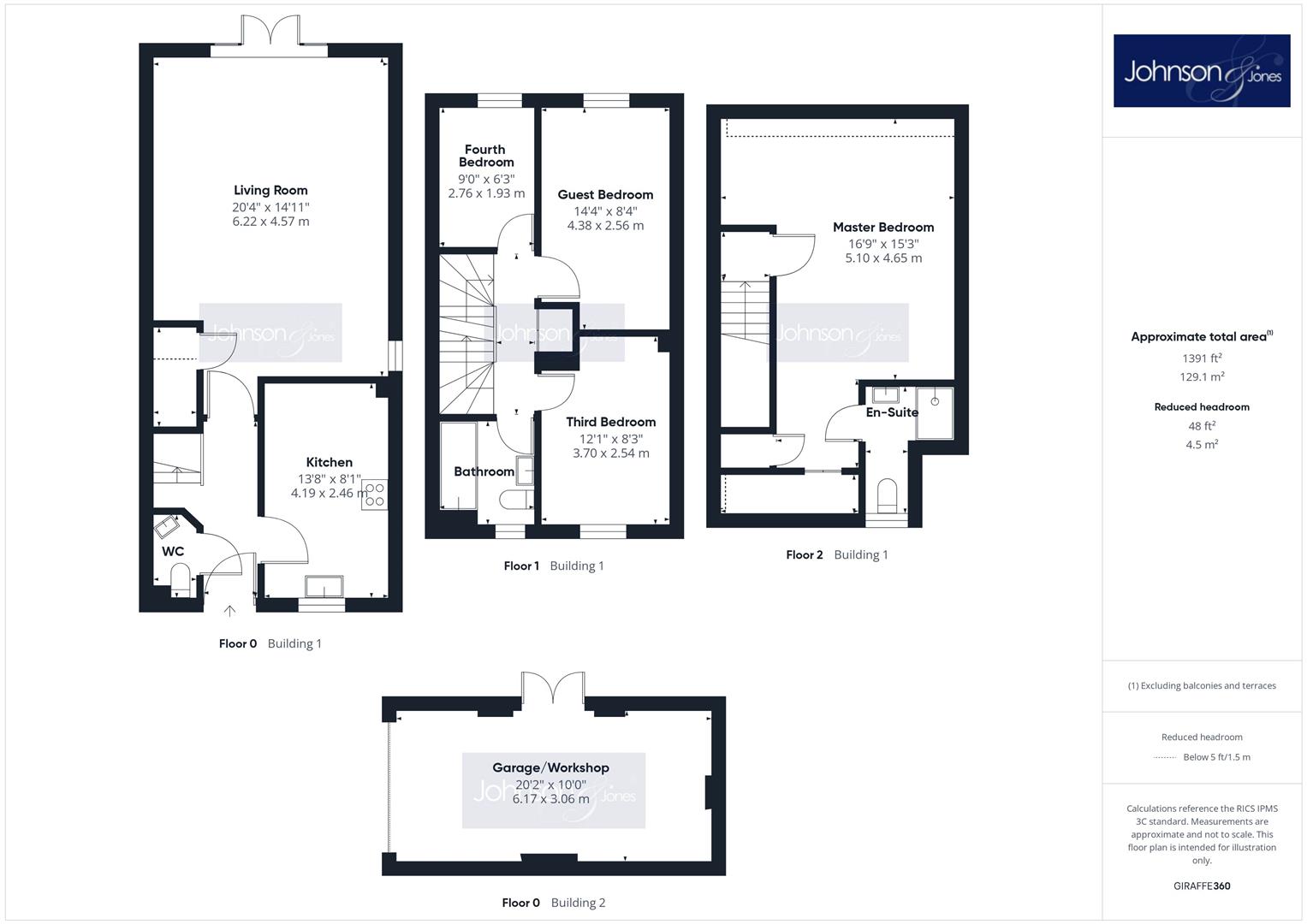
Located on the ever-popular Cartwright Drive in the charming town of Chertsey, this stunning semi-detached house, completed in 2022, offers a seamless blend of modern elegance and family comfort. Spanning an impressive 1,400 square feet, the property remains in immaculate condition, presenting as fresh as the day it was built and providing an ideal turn-key opportunity for those seeking a contemporary lifestyle. Upon entering, you are welcomed by a sleek front-aspect kitchen, fully equipped with integrated appliances and a stylish breakfast bar perfect for casual morning coffee or family gatherings. The heart of the home is the expansive rear reception room, a bright and airy sanctuary bathed in natural light from elegant French doors and overhead skylights that create a wonderful sense of volume and space.The living accommodation is thoughtfully arranged over three floors, starting with the first floor, which hosts three generously proportioned double bedrooms and a well-appointed family bathroom featuring a shower over the bath. Ascending to the top floor, the master suite serves as a private retreat, boasting bespoke fitted wardrobes and a luxurious en-suite shower room. Externally, the property continues to impress with a large, sun-drenched rear garden offering side access and ample space for outdoor entertaining. A spacious driveway provides off-street parking for up to three vehicles and leads to a sizeable private garage. Uniquely, this garage features its own set of French doors opening directly onto the garden, offering an exciting and versatile opportunity to create a high-end home office, a private gym, or a sophisticated garden bar. Combining modern design with spacious, versatile living, this exceptional home represents a rare find in the Chertsey market.Tenure: FreeholdEstate Charge: £300.00 Per Annum
Key Features:
- Four Spacious Bedrooms
- Huge Reception Room
- Fitted Wardrobes & En-Suite To Master
- Quiet Cul-De-Sac Location
- 0.5 Miles To Chertsey Train Station
- Turn-Key Ready To Move In
Full Details:
Viewing & Disclaimer:
Please contact us on 01932 560777 if you wish to arrange a viewing appointment for this property, or require further information.
Energy Performance Certificate
Click here to view the Energy Efficiency Rating and Environmental Impact Rating for this property.
Johnson and Jones endeavour to maintain accurate depictions of properties in Virtual Tours, Floor Plans and descriptions, however, these are intended only as a guide and purchasers must satisfy themselves by personal inspection.
