14
Gogmore Lane, Chertsey, KT16
Guide price £234,995
1 bedrooms, 1 bathrooms, 1 receptions
Summary:
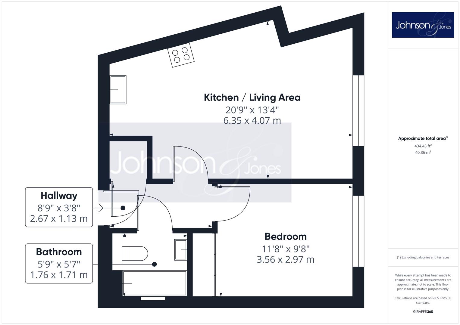
Situated in the vibrant center of Chertsey, this stunning, gated ground-floor apartment offers a perfect blend of modern luxury and convenience. Meticulously finished to the highest specification, this residence is ideal for those seeking a premium lifestyle.The development makes a grand first impression with immaculately maintained communal areas, reflecting the pride and quality of the resident community. Inside, the apartment is both functional and chic. A central hallway, featuring practical storage for coats and shoes, leads to an expansive open-plan living space. The kitchen is a chef’s dream, featuring luxury tiling, premium grey wood flooring, integrated appliances, and a seamless flow into a dining and lounge area pre-wired for your entertainment needs.The master bedroom serves as a serene retreat, complete with a full wall of floor-to-ceiling built-in wardrobes. The bathroom is truly bespoke, finished with high-end Villeroy & Boch sanitaryware, elegant chrome fixtures, mirrored walls, and automatic LED accent lighting.Externally, the property benefits from an allocated parking space secured behind remote-controlled gates. With Chertsey’s exceptional bars, restaurants, and the railway station just a short stroll away, this property is a rare find. Early internal inspection is highly recommended.Lease Length: 125 years from 1st April 2018 (circa 117 Years Remain) Service Fee: £1,521.00 per annum Ground Rent: £250.00 per annumCouncil Tax: Band C
Key Features:
- Stunning Finish
- Spacious Bedroom
- Allocated Parking
- Open Plan Kitchen Space
- Town Centre Location
- Security Gates
Full Details:
Viewing & Disclaimer:
Please contact us on 01932 560777 if you wish to arrange a viewing appointment for this property, or require further information.
Energy Performance Certificate
Click here to view the Energy Efficiency Rating and Environmental Impact Rating for this property.
Johnson and Jones endeavour to maintain accurate depictions of properties in Virtual Tours, Floor Plans and descriptions, however, these are intended only as a guide and purchasers must satisfy themselves by personal inspection.
