20
Station Road, Chertsey, KT16
SSTC
OIEO £425,000
2 bedrooms, 2 bathrooms, 2 receptions
Summary:
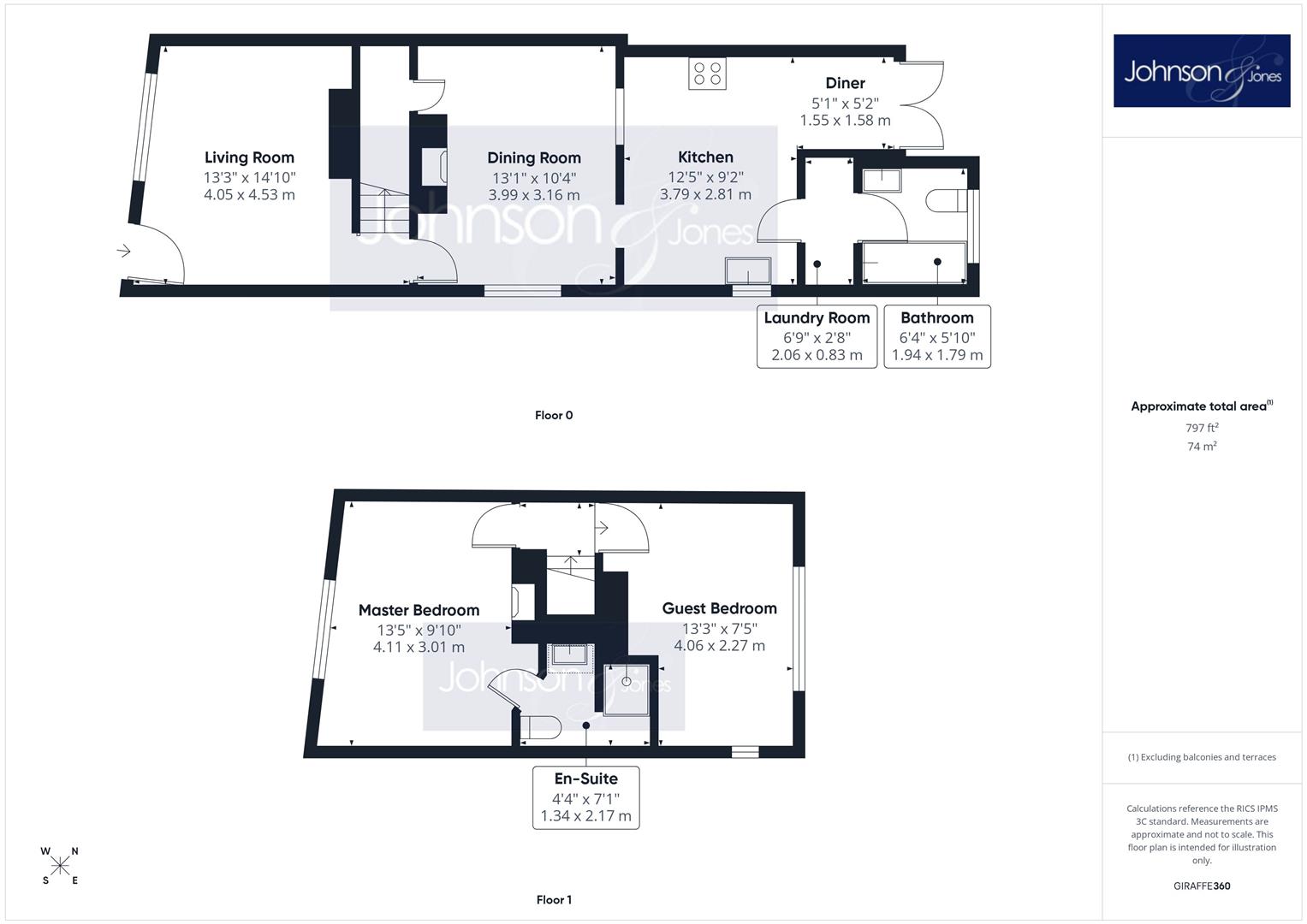
Johnson & Jones are delighted to present this rare gem situated on Station Road in the heart of Chertsey. This exquisite Victorian semi-detached home, dating back to 1890, offers a seamless blend of period character and contemporary refinement. Spanning approximately 800 square feet of impeccably presented living space, the residence features two generous double bedrooms, including a principal suite complete with a private en-suite shower room. The ground floor is designed for both comfort and sophisticated entertaining, centred on two inviting reception rooms, with a working fireplace providing a warm focal point for winter evenings. Practicality is equally considered, with a well-appointed family bathroom and a dedicated utility room ensuring a streamlined lifestyle. The home's architectural highlight is the extended kitchen, a bright and social hub with a breakfast bar and elegant French doors that open seamlessly to the outdoors. Beyond lies a mature rear garden, where a canopy of established trees creates a rare sense of seclusion and natural beauty. For those with a mind for the future, the private driveway currently accommodates one vehicle but offers clear potential for expansion. Ideal for those with EV charging needs. Equipped with gas central heating and double glazing throughout, the property is as efficient as it is charming. Located just 0.2 miles from Chertsey Railway Station and the bustling High Street, this home represents a premier opportunity for a chain-free purchase in a truly enviable location.Tenure: Freehold VACANT CHAIN FREE SALE
Full Details:
Viewing & Disclaimer:
Please contact us on 01932 560777 if you wish to arrange a viewing appointment for this property, or require further information.
Energy Performance Certificate
Click here to view the Energy Efficiency Rating and Environmental Impact Rating for this property.
Johnson and Jones endeavour to maintain accurate depictions of properties in Virtual Tours, Floor Plans and descriptions, however, these are intended only as a guide and purchasers must satisfy themselves by personal inspection.
