15
Victory Road, Chertsey, KT16
SSTC
Guide price £395,000
2 bedrooms, 1 bathrooms, 1 receptions
Summary:
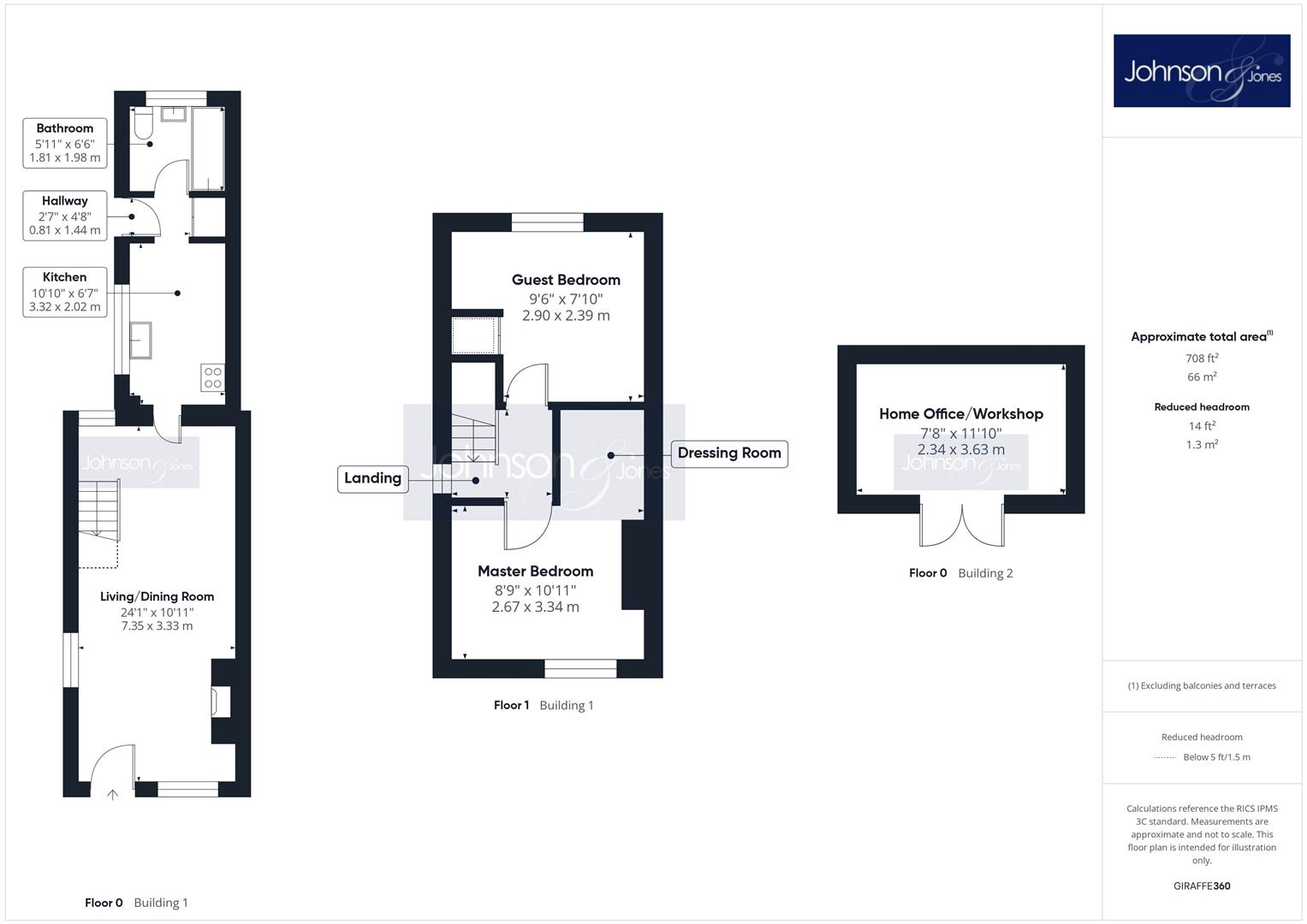
Set on the charming Victory Road in the heart of Chertsey, this delightful Victorian house offers a perfect blend of classic elegance and modern comfort. The property features two generously sized double bedrooms on the first floor, providing ample space for relaxation and rest. On the ground floor, you will find a fantastic triple aspect open plan lounge diner, which floods the space with natural light, creating a warm and inviting atmosphere for both entertaining and everyday living. The well-appointed kitchen boasts a lovely white fitted design, complete with a stylish Range Cooker, making it a joy for any culinary enthusiast. Adjacent to the kitchen, the modern bathroom features a sleek three-piece suite with chrome fixtures, ensuring a contemporary feel.Externally, the property is complemented by a charming courtyard garden, which is a lovely size and features well-maintained flower beds on either side, perfect for those with a green thumb or for simply enjoying the outdoors. Additionally, there is a workshop or home office located at the rear, providing a versatile space that can be tailored to your needs.Further advantages of this property include gas central heating and double-glazed windows throughout, ensuring comfort and energy efficiency. This Victorian gem on Victory Road is an ideal choice for those seeking a characterful home in a desirable location.Tenure: Freehold
Key Features:
- Two Double Bedrooms
- Abundance Of Character
- Short Walk To Chertsey Mainline Railway Station
- Home Studio & Enclosed Rear Garden
- Double Glazed Windows
- Gas Central Heating
Full Details:
Viewing & Disclaimer:
Please contact us on 01932 560777 if you wish to arrange a viewing appointment for this property, or require further information.
Energy Performance Certificate
Click here to view the Energy Efficiency Rating and Environmental Impact Rating for this property.
Johnson and Jones endeavour to maintain accurate depictions of properties in Virtual Tours, Floor Plans and descriptions, however, these are intended only as a guide and purchasers must satisfy themselves by personal inspection.
