9
Manor Farm Court, Egham, TW20
Guide price £125,000
1 bedrooms, 1 bathrooms, 1 receptions
Summary:
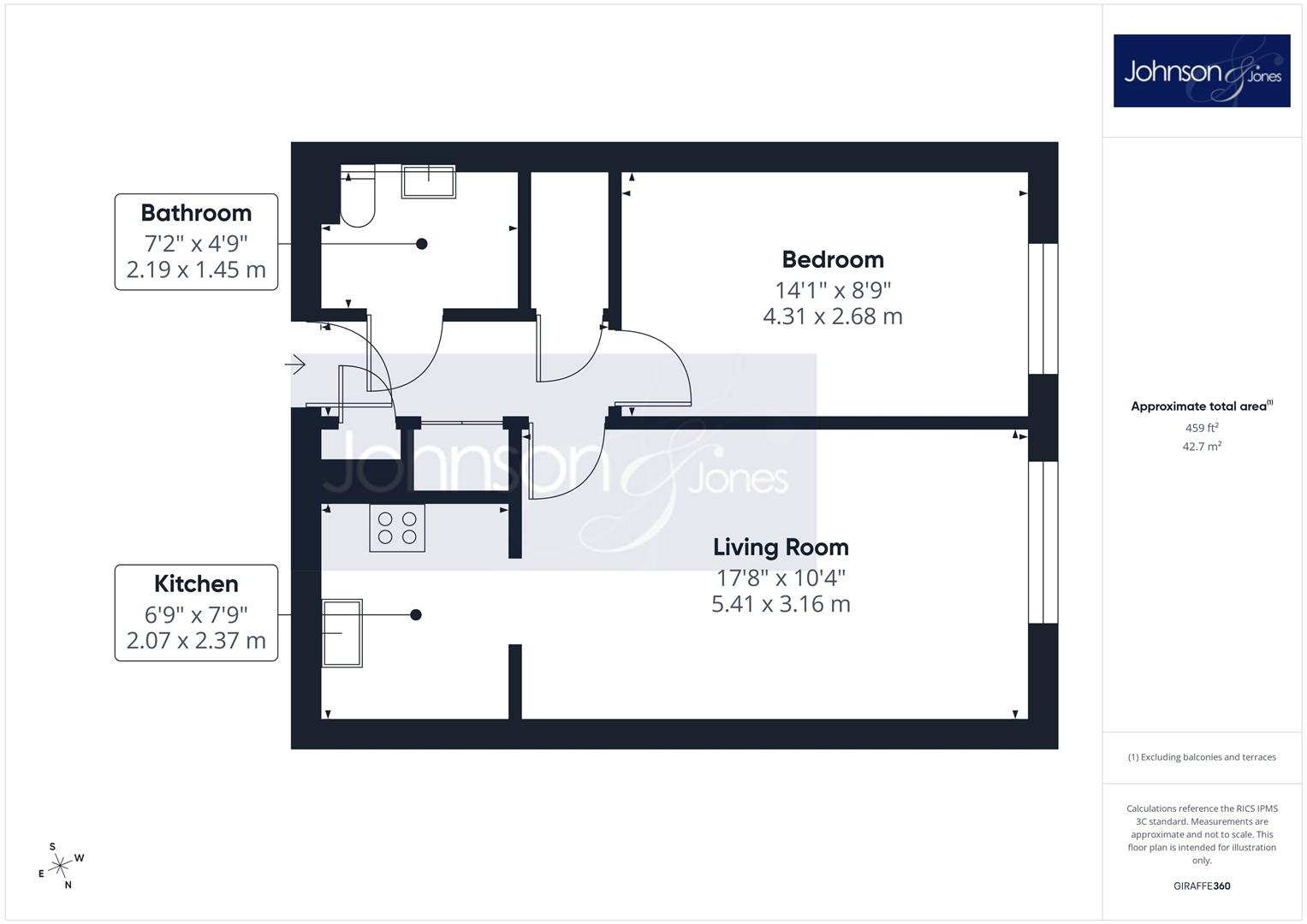
Welcome to this delightful retirement property located in the serene Manor Farm Court, Egham. Designed specifically for those over 55, this residence offers a perfect blend of comfort and convenience. The property features a spacious communal lounge, ideal for socialising with fellow residents, and boasts beautifully landscaped communal grounds that enhance the tranquil atmosphere.As you enter the property, you will appreciate the new neutral decor throughout, creating a fresh and inviting environment. The large double bedroom provides ample space for relaxation, while the white bathroom suite, complete with a walk-in shower, ensures ease of access and comfort.This home benefits from a westerly-facing aspect, allowing for plenty of natural light to fill the living spaces. The property is fully double-glazed, ensuring warmth and energy efficiency, complemented by an excellent EPC rating. For added convenience, a lift facility provides easy access to all floors, and a large storage cupboard offers practical solutions for your belongings.The on-site warden adds an extra layer of security and support, making this property an ideal choice for those seeking a peaceful retirement lifestyle. With a large car park available, visitors and residents alike will find parking hassle-free. Furthermore, the property is just a short walk from the town centre, providing easy access to local amenities and services.This charming retirement property is offered with no onward chain, making it an excellent opportunity for those looking to settle into a welcoming community. Don't miss the chance to make this lovely home your own.Tenure: LeaseholdLease: NEW LEASE ON COMPLETIONService Charge: £3014.96 Per AnnumGround Rent: £0.00 Per Annum
Full Details:
Viewing & Disclaimer:
Please contact us on 01932 560777 if you wish to arrange a viewing appointment for this property, or require further information.
Energy Performance Certificate
Click here to view the Energy Efficiency Rating and Environmental Impact Rating for this property.
Johnson and Jones endeavour to maintain accurate depictions of properties in Virtual Tours, Floor Plans and descriptions, however, these are intended only as a guide and purchasers must satisfy themselves by personal inspection.
