20
Drill Hall Road, Chertsey, KT16
SSTC
Guide price £420,000
3 bedrooms, 1 bathrooms, 2 receptions
Summary:
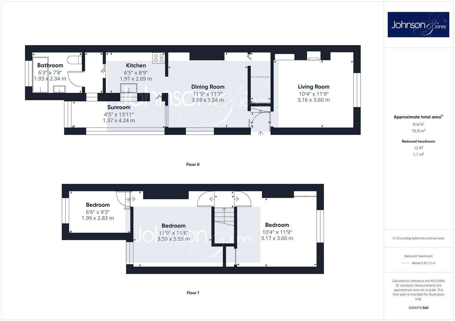
Positioned on the charming Drill Hall Road in Chertsey, this delightful semi-detached Victorian house offers a perfect blend of character and modern living. Spanning an impressive 816 square feet, the property features two inviting reception rooms, ideal for both relaxation and entertaining. The front aspect reception room boasts a lovely feature fireplace, creating a warm and welcoming atmosphere, while the rear reception room is bathed in natural light, thanks to its dual aspect windows.The well-maintained white fitted kitchen, though ripe for a contemporary update, has been lovingly cared for and remains in immaculate condition. The family bathroom, complete with a white three-piece suite and a shower above the bath, provides practical amenities for everyday living. Freshly painted throughout, this home is ready for you to move in without delay, yet still offering excellent potential to put your own stamp in time. On the first floor, you will find two spacious double bedrooms, alongside a third bedroom at the rear, perfect for a child’s room or a home office. The potential for expansion is evident, as many residents on the street have successfully extended their properties, including the neighbouring house, offering exciting opportunities to increase value (stpp).The south-facing rear garden is a true highlight, predominantly laid to lawn and adorned with mature borders, providing a serene outdoor space for family gatherings or quiet moments of reflection. Located just a short stroll from the town centre, this property is ideally situated near a selection of excellent schools, making it perfect for families.Available chain-free with vacant possession, this home presents a quick sale opportunity for those eager to settle into their new abode. Don’t miss the chance to make this charming Victorian house your own.Tenure: FreeholdChain: No Onward Chain
Key Features:
- Chain Free Sale
- Town Centre Location
- Brand New Gas Combination Boiler
- Huge South Facing Garden
- Three Bedrooms
- Abundance Of Character
Full Details:
Viewing & Disclaimer:
Please contact us on 01932 560777 if you wish to arrange a viewing appointment for this property, or require further information.
Energy Performance Certificate
Click here to view the Energy Efficiency Rating and Environmental Impact Rating for this property.
Johnson and Jones endeavour to maintain accurate depictions of properties in Virtual Tours, Floor Plans and descriptions, however, these are intended only as a guide and purchasers must satisfy themselves by personal inspection.
