16
Galsworthy Road, Chertsey, KT16
OIEO £350,000
2 bedrooms, 1 bathrooms, 2 receptions
Summary:
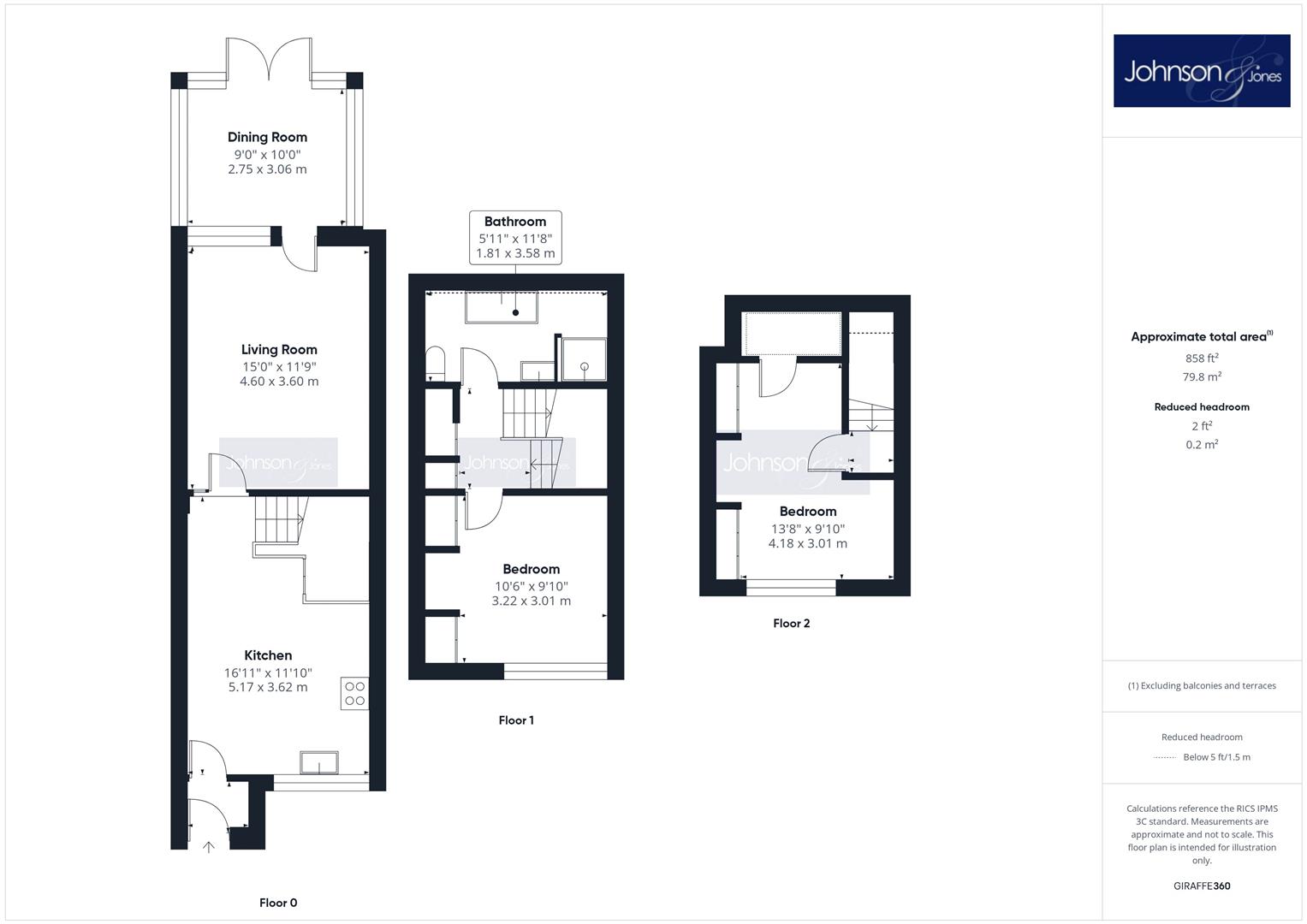
Located on the ever-popular Galsworthy Road, right in the heart of Chertsey, this charming house offers a fantastic and affordable opportunity for first-time buyers & investors alike. Spanning an impressive 858 square feet and thoughtfully arranged over three floors, this property boasts two spacious reception rooms, two large double bedrooms, and a fantastic four-piece bathroom!The heart of the home is undoubtedly the sociable kitchen, which features an abundance of fitted cabinets, a large walk-in larder cupboard, and a central island breakfast bar, making it an ideal space for culinary enthusiasts. The rear aspect lounge, with its inviting atmosphere, opens through doors to a sun room that serves as a perfect dining area, allowing for seamless indoor-outdoor living.The property comprises two generously sized double bedrooms, each adorned with bespoke fitted cabinetry, ensuring both style and practicality. The luxury bathroom suite is a true highlight, featuring a magnificent walk-in shower and a freestanding bathtub, offering a serene retreat for relaxation.Additional features include a large eaves storage cupboard on the top floor, providing extra space for belongings, and gas central heating throughout, ensuring warmth and comfort during the colder months. The neutral decor throughout the home creates a blank canvas, ready for you to add your personal touch.Situated on a quiet side road, this property enjoys an excellent location, with the railway station and town centre just a short stroll away, making it convenient for commuting and local amenities. With no onward chain, this home is ready for you to move in and start creating lasting memories. Don’t miss the opportunity to make this lovely house your new home today!Tenure: FreeholdChain: No Onward Chain
Key Features:
- Chain Free Sale
- No Onward Chain
- Moments From High Street
- Double Glazed Windows
- Large Sociable Kitchen
- Front & Rear Patio Gardens
Full Details:
Viewing & Disclaimer:
Please contact us on 01932 560777 if you wish to arrange a viewing appointment for this property, or require further information.
Energy Performance Certificate
Click here to view the Energy Efficiency Rating and Environmental Impact Rating for this property.
Johnson and Jones endeavour to maintain accurate depictions of properties in Virtual Tours, Floor Plans and descriptions, however, these are intended only as a guide and purchasers must satisfy themselves by personal inspection.
