16
Gogmore Lane, Chertsey, KT16
Guide price £335,000
2 bedrooms, 1 bathrooms, 1 receptions
Summary:
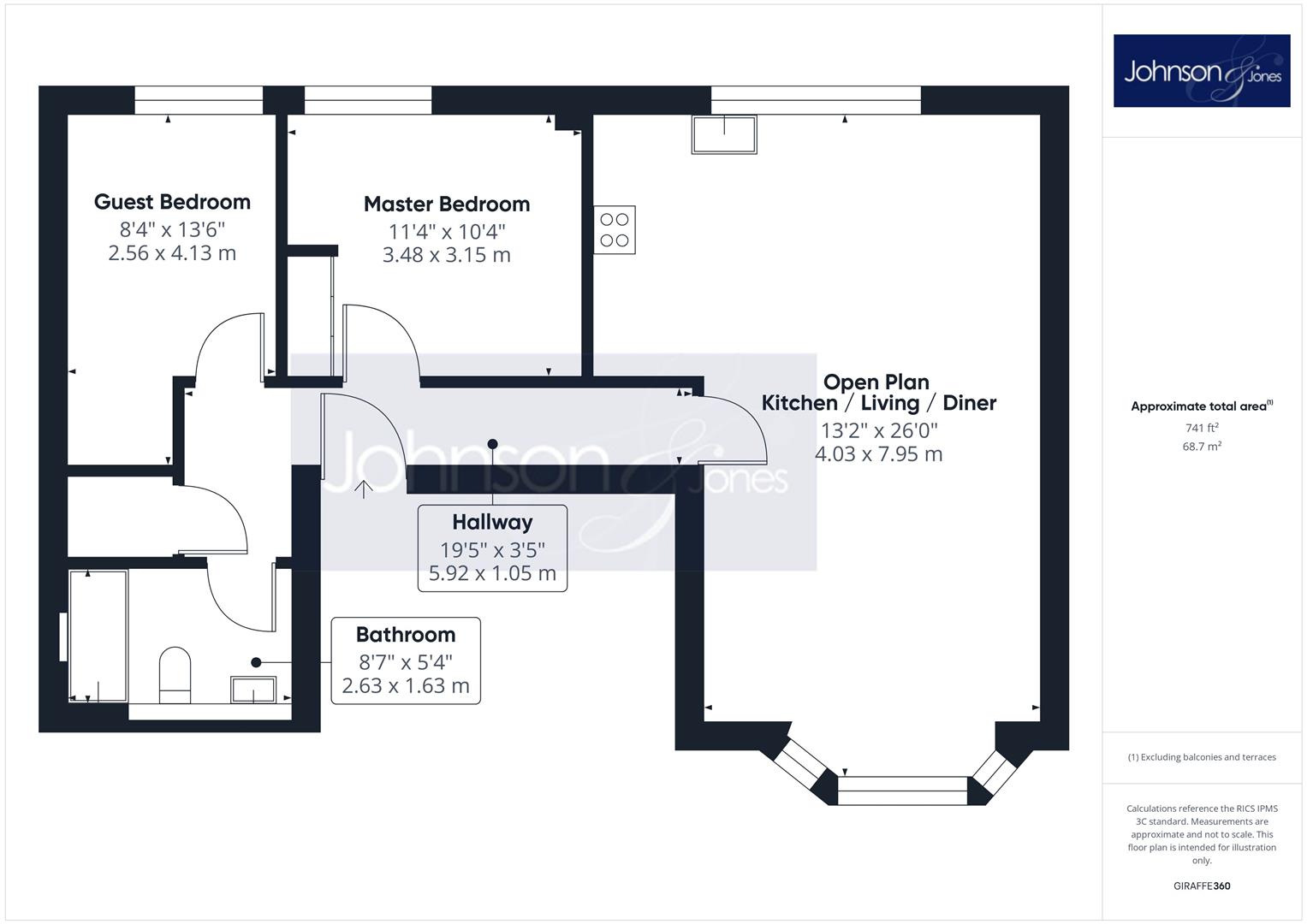
Johnson & Jones are delighted to present Mead Court on Gogmore Lane in the charming town of Chertsey. This stunning luxury apartment offers a perfect blend of contemporary living and convenience. With a generous 785 square feet of space, this very recently built apartment features two spacious double bedrooms and a luxurious bathroom that boasts LED accent lighting, creating a serene atmosphere for relaxation. The heart of the home is undoubtedly the impressive dual aspect open plan living area, which measures over 26 feet in length. This expansive space is perfect for both entertaining and everyday living, showcasing stunning contemporary decor that is both versatile and adaptable. The property is ready for you to move in and make it your own.In addition to its stylish interior, the property benefits from allocated secure gated parking, ensuring peace of mind for your vehicle. The location is truly exceptional, situated just a few yards from Chertsey High Street, where you can enjoy a variety of shops and amenities. For those who commute, the Railway Station is conveniently located only 0.4 miles from your front door, making travel to London and beyond a breeze. With the M25 a mere 2.4 Miles for those who drive. Further highlights include an entryphone system for added security, integral kitchen appliances for modern convenience, and a large central hallway that enhances the flow of the home. With no onward chain, this property presents a fantastic opportunity for both first-time buyers and those looking to downsize. This larger-than-average home really needs to be seen to be appreciated, so do not miss your chance to view this exceptional property.Tenure: LeaseholdLease Length: Circa 117 Years RemainingGround Rent: £250 Per AnnumService Charge: £1690 Per Annum
Key Features:
- Two Double Bedrooms
- Allocated Parking Space
- Town Centre Location
- Modern Fitted Kitchen With Integrated Appliances
- Lift Access
- Circa 741 Square Foot
Full Details:
Viewing & Disclaimer:
Please contact us on 01932 560777 if you wish to arrange a viewing appointment for this property, or require further information.
Energy Performance Certificate
Click here to view the Energy Efficiency Rating and Environmental Impact Rating for this property.
Johnson and Jones endeavour to maintain accurate depictions of properties in Virtual Tours, Floor Plans and descriptions, however, these are intended only as a guide and purchasers must satisfy themselves by personal inspection.
