21
London Street, Chertsey, KT16
Guide price £425,000
2 bedrooms, 1 bathrooms, 3 receptions
Summary:
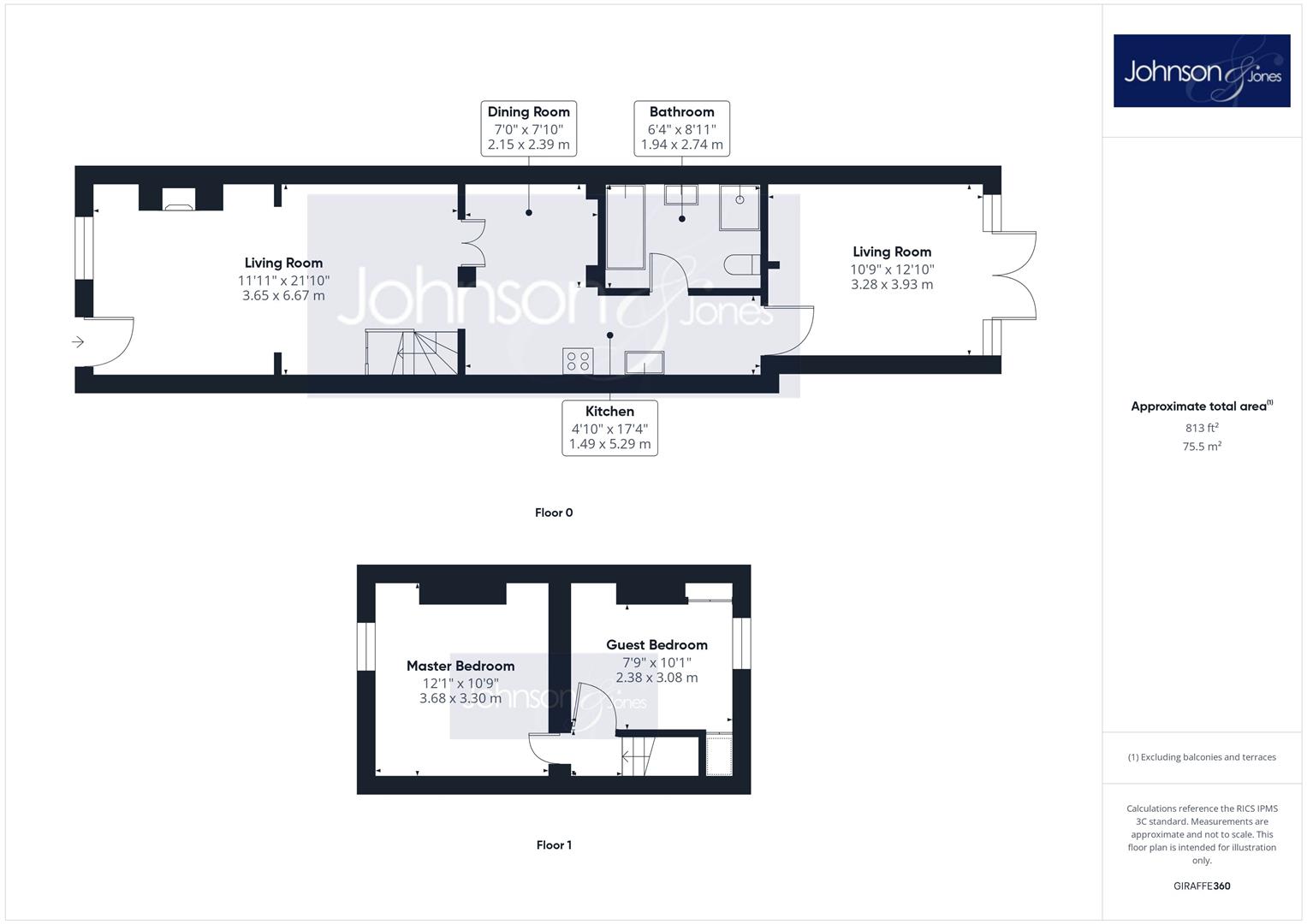
Johnson & Jones are very excited to present this Incredibly deceptive period cottage located right in the heart of Chertsey Town Centre. Having been extend on the ground floor and renovated to exacting standards, its possibly one of the most surprising properties we have brought to market in some time and presents a unique opportunity for those seeking a blend of modern living and traditional charm.To the front we have what would have been the original lounge & dining room, which have been opened up and furnished with beautiful hardwood flooring. The feature fireplace has been retained combined with the sash windows gives a lovely cosy character feeling. To the rear we have a striking modern kitchen with a charming central dining area, kept beautiful bright thanks to its glazed ceiling. To the rear the property continues to impress with an additional reception room with patio doors overlooking the garden, providing a serene space to relax, away for the hustle and bustle of daily life.Both the master and second bedrooms are comfortable double rooms, and the family bathroom has a stunning free standing bath, in addition to a large walk in shower. The landscaped rear garden is a private oasis, with a raised decked area creating the perfect sun trap, surrounded by mature planting it has a lovely feeling of seclusion. Literally one minute walk into the town centre, yet amazingly quiet and relaxing once inside, this property truly encapsulates the best of all worlds, and early internal inspections are certainly advised!Tenure: Freehold
Key Features:
- Two Double Bedrooms
- Town Centre Location
- Extended Rear Living Space With Skylight & French Doors Onto Garden
- Abundance Of Character
- Modern Fitted Kitchen & Bathroom
- Double Glazed Windows
Full Details:
Viewing & Disclaimer:
Please contact us on 01932 560777 if you wish to arrange a viewing appointment for this property, or require further information.
Johnson and Jones endeavour to maintain accurate depictions of properties in Virtual Tours, Floor Plans and descriptions, however, these are intended only as a guide and purchasers must satisfy themselves by personal inspection.
