19
Mead Lane, Chertsey, KT16
SSTC
Guide price £420,000
3 bedrooms, 1 bathrooms, 1 receptions
Summary:
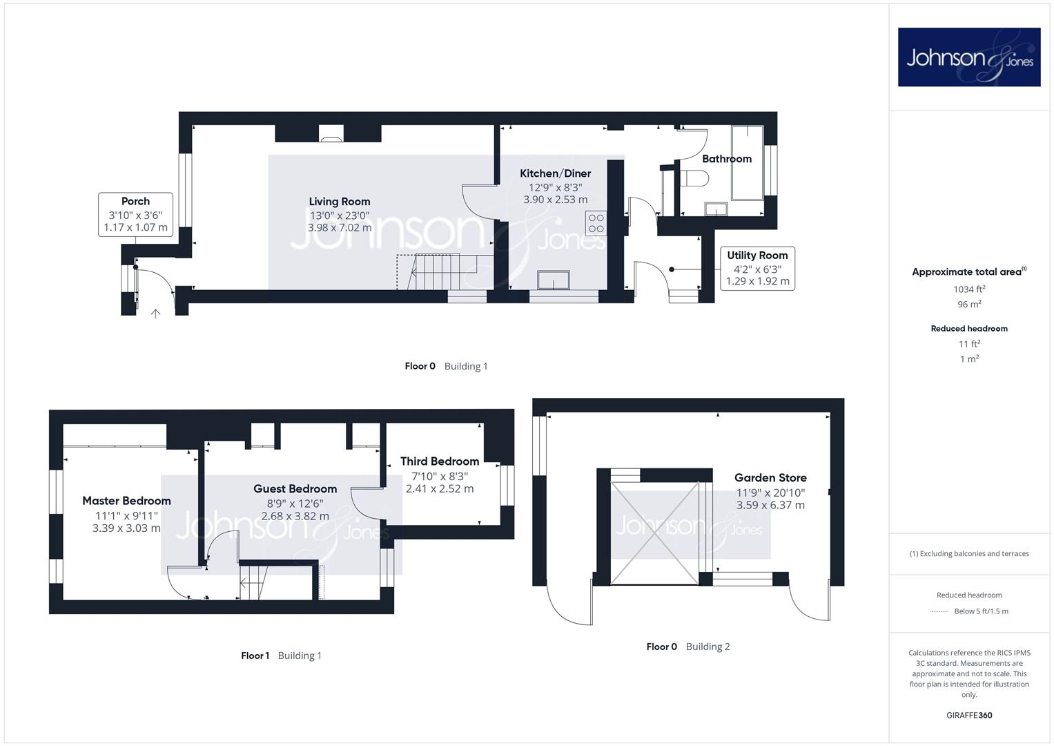
Located on the ever popular Mead Lane in the charming town of Chertsey, this delightful semi-detached house offers a perfect blend of character and modern living. Built circa 1900, the property spans an impressive 1034 square feet and features three well-proportioned bedrooms on the first floor. The layout is thoughtfully designed, with the smallest bedroom conveniently accessible through the second, a space that many have creatively transformed into a walk-in wardrobe or en-suite bathroom.The heart of the home is the open-plan lounge and dining area, where the walls have been removed to create a bright and airy living space that benefits from dual aspect windows, allowing natural light to flood in. The property is equipped with double-glazed windows and gas central heating, ensuring comfort throughout the seasons. A handy utility room adds to the practicality of the home.Step outside to discover a stunning mature rear garden, thoughtfully zoned into sections, stretching approximately 90 feet in length. At the end of the garden, a workshop or garden store provides additional storage or creative space. The garden is a true haven, perfect for relaxation or entertaining with a wonderful feeling of seclusion.The location is particularly appealing, with excellent proximity to the Chertsey Meads, a beautiful area featuring 175 acres of wildflower meadows along the banks of the River Thames. This setting offers a wonderful opportunity for outdoor activities and leisurely strolls.With potential for further enhancement, as some neighbouring properties have undertaken double-storey extensions (subject to planning permission), this home presents an exciting opportunity for those looking to invest in a property with both charm and potential. Whether you are a first-time buyer or seeking a family home, this property is sure to impress and early internal inspections are highly recommended!Tenure: FreeholdChain: No Onward ChainCouncil Tax: Band D
Key Features:
- Extension Potential STPP
- Chain Free Sale
- Huge 90ft Rear Garden
- Three Bedrooms
- Spacious Kitchen Diner
- Close To Chertsey Meads
Full Details:
Viewing & Disclaimer:
Please contact us on 01932 560777 if you wish to arrange a viewing appointment for this property, or require further information.
Energy Performance Certificate
Click here to view the Energy Efficiency Rating and Environmental Impact Rating for this property.
Johnson and Jones endeavour to maintain accurate depictions of properties in Virtual Tours, Floor Plans and descriptions, however, these are intended only as a guide and purchasers must satisfy themselves by personal inspection.
